
Quinta da Baroneza
➤ Rodovia Alkindar Monteiro Junqueira – Q.ta da Baroneza – Bragança Paulista – SP
Projeto exclusivo Lucas Padovani, com arquitetura contemporânea e autoral.
Área útil: 1.005 m².
Área de terreno: 3.011 m²
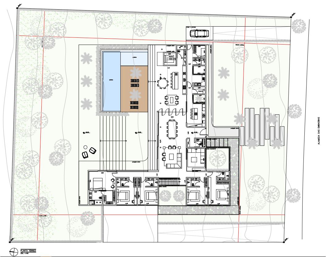
O projeto oferece inúmeras opções de lazer, como: Sauna, Academia, Piscina com prainha e SPA, espaço Gourmet Completo e Cozinha Integrável.
Programa da Casa/Detalhes:
✓ 4 vagas cobertas, com tomadas para carro elétrico;
✓ Apartamento de caseiro com acesso separado da casa;
✓ 5 suítes;
✓ Piscina com SPA e Prainha;
✓ Espaço Gourmet completo com vestiário;
✓ Área de serviço integrada com pátio externo;
✓ Lareira, academia e sauna;



















